GALLERIA

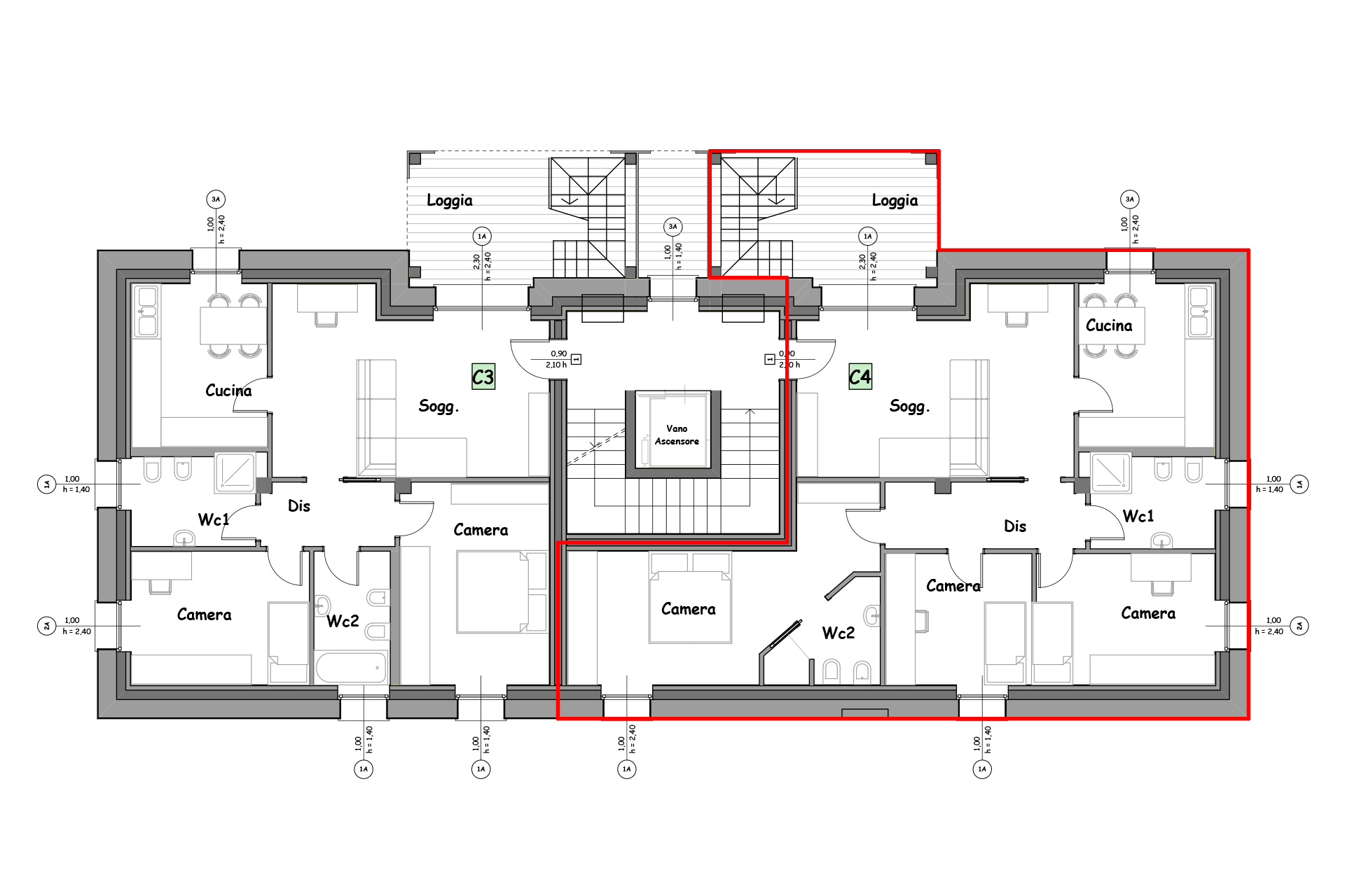
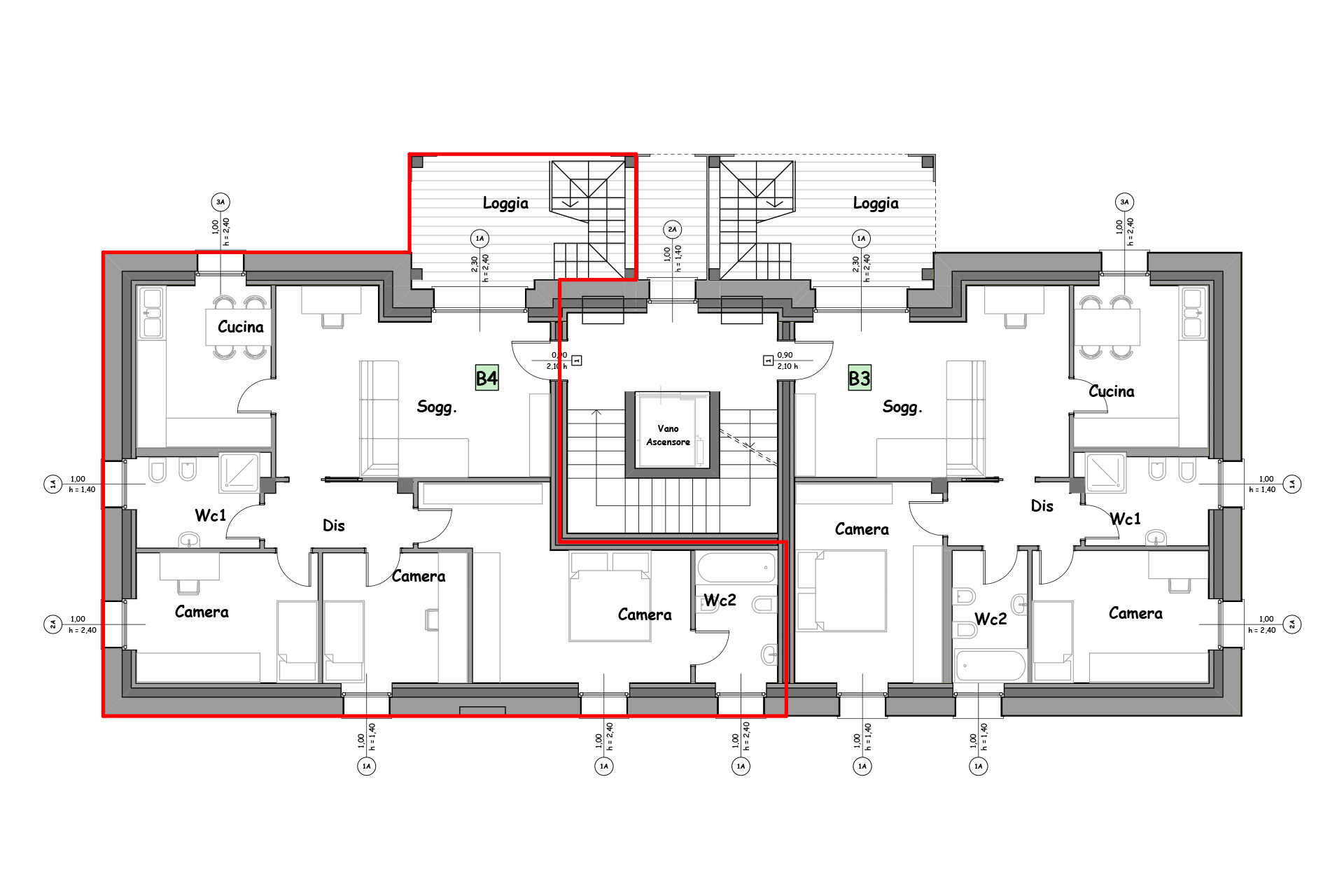
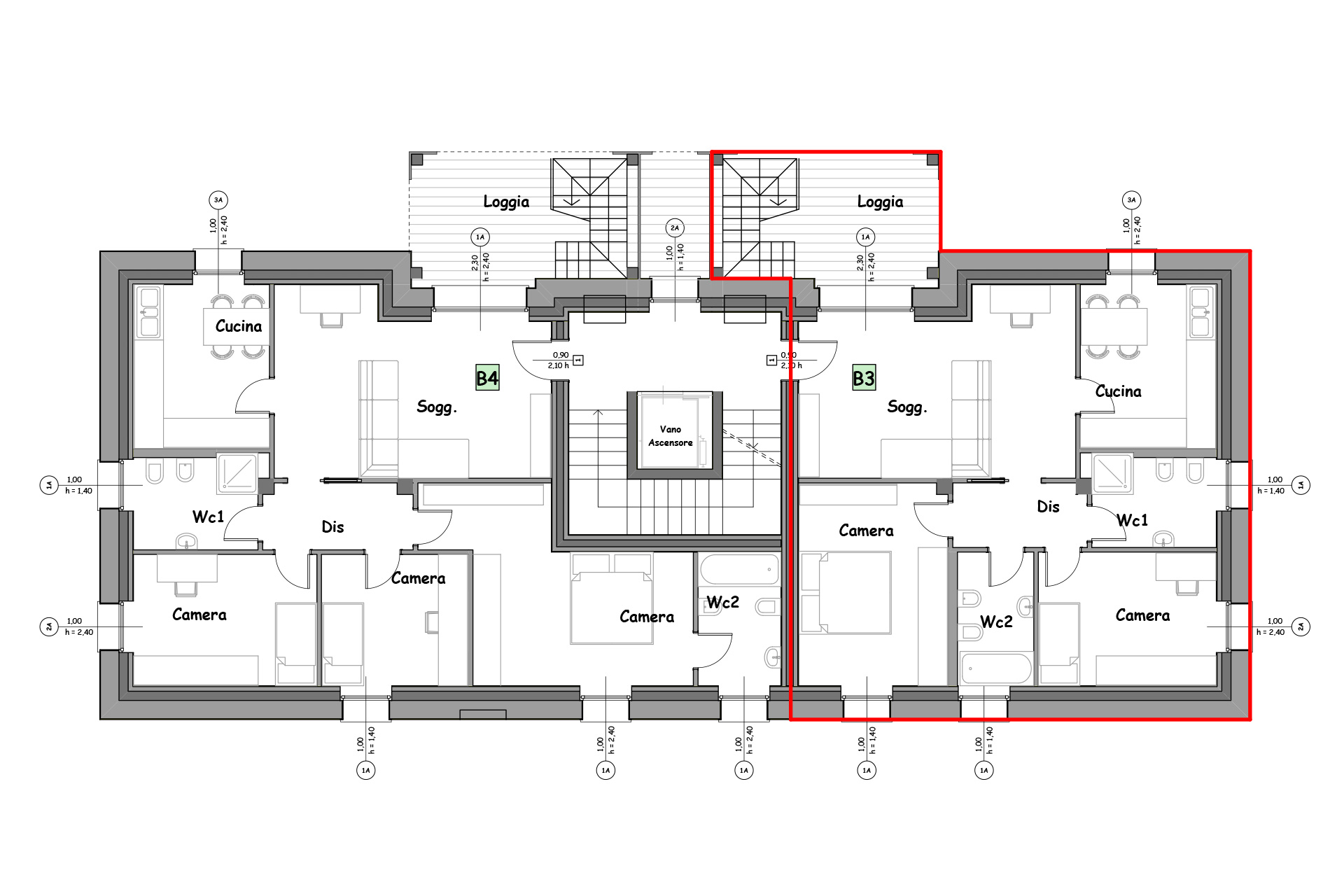
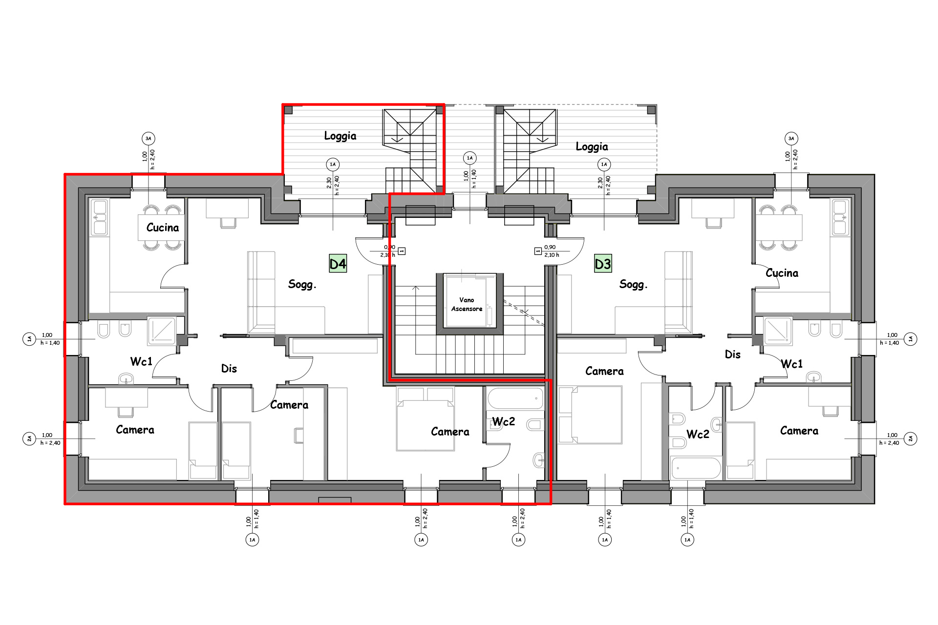
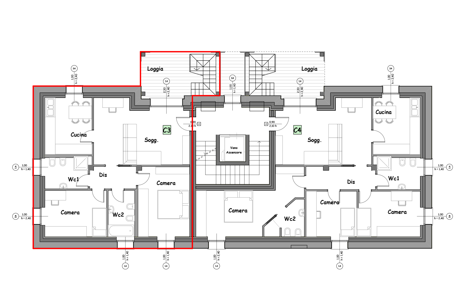
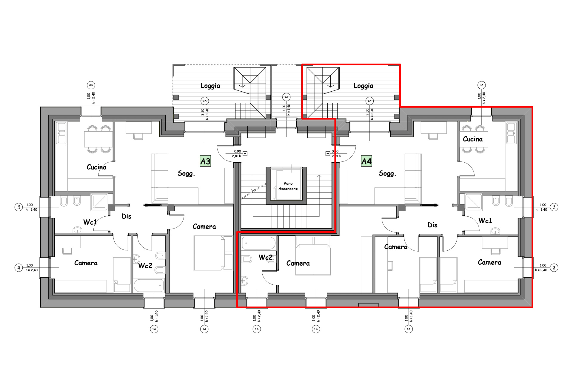
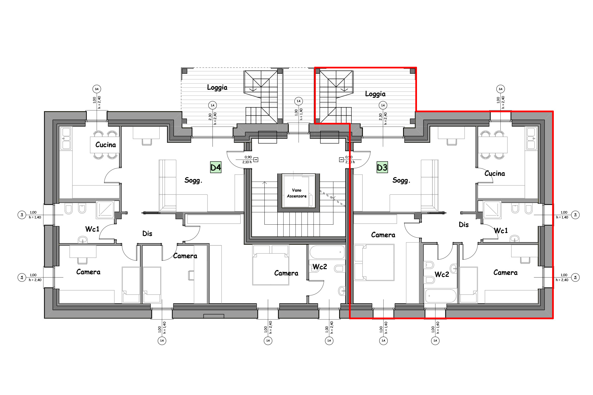
Planimetrie e prospetti - Residenze Paradiso

© 2015 TONOLLI. TUTTI I DIRITTI RISERVATI